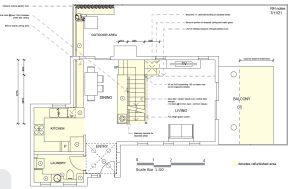
Architectural Concept Plan for apartment renovation